DANDAJI MARKET
Transformative Community Infrastructure
Status: Completed 2018
Location: Dandaji , Niamey
Team: Mariam Issoufou, Harouna Diallo, Victoire Tata-Mbolwone
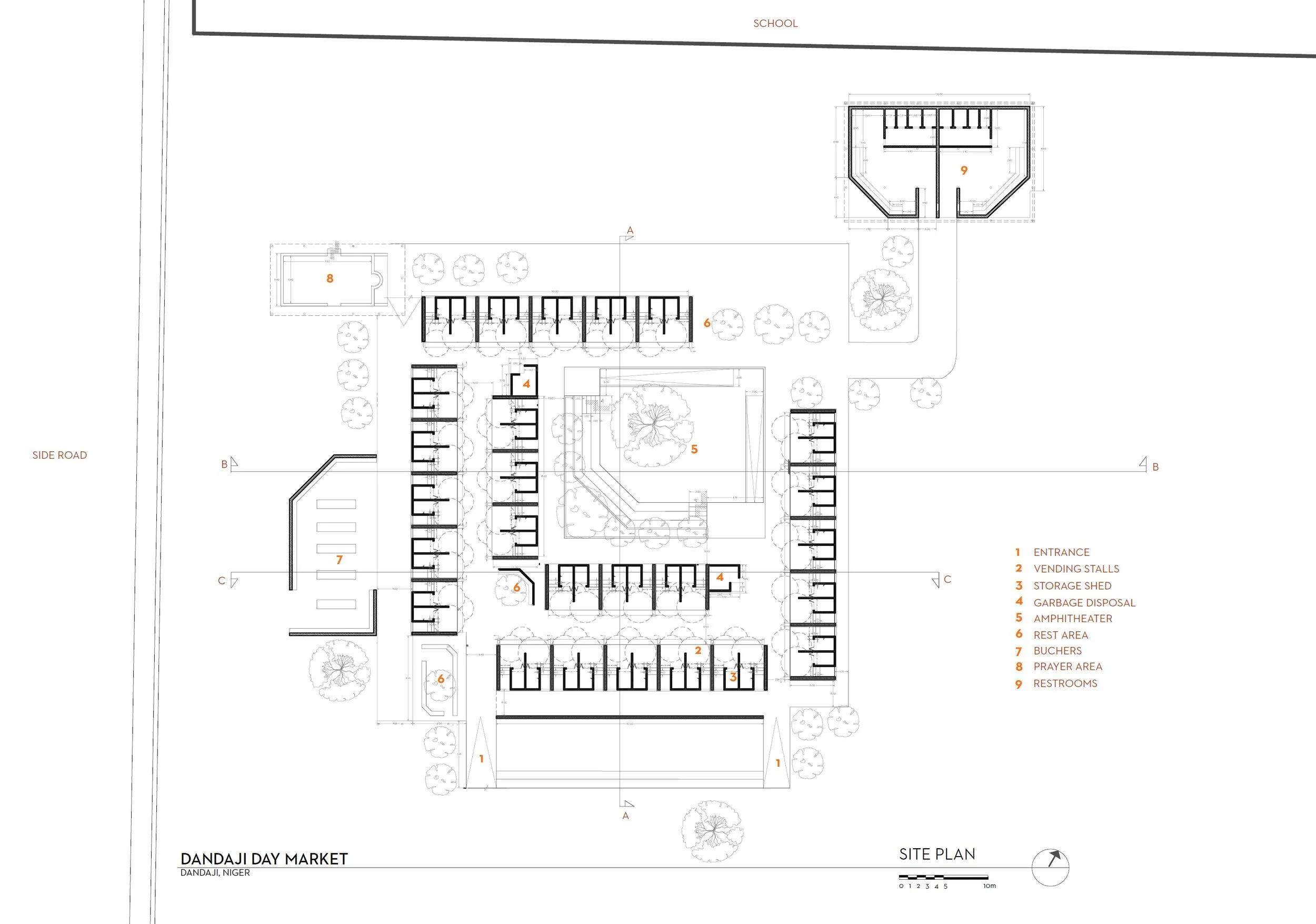
In response to Dandaji’s need for a permanent market in place of a weekly one that organized itself around an ancestral tree, the studio enhanced the existing shop typology made out of reed roofs hoisted on adobe posts and walls. The new design builds upon the existing experience of sellers and buyers gathering at the same site for years, while restoring a sense of confidence to project themselves into an aspirational future. The design utilises compressed earth bricks and recycled metal for durability and strength.
-
The simple structural system assembles into a colorful canopy composed of a succession of individual shading discs, responding to the difficulty of cultivating large trees in Niger’s arid climate. Their overlapping arrangement and varied heights enhance natural ventilation, drawing hot air upward while casting layered shade across the market floor. This straightforward yet carefully calibrated strategy provides effective solar and thermal protection to the vending spaces below, ensuring comfort throughout the day.
The market is organized to step gently down toward the historic tree, whose surroundings are formalized into a generous public space with seating and areas for rest. Shaded lanes structure circulation through the site, creating moments of pause and encounter. The alternating heights of the canopy elements promote airflow, while the thermal mass of the compressed-earth brick stalls contributes to cooling. Together, these passive strategies establish a microclimate suited to daily commercial activity.
Visually striking yet materially restrained, the canopy introduces a playful identity that complements the vibrant goods on display. The result is an infrastructure that transcends its utilitarian function, becoming a recognizable civic landmark. By combining climatic performance with architectural clarity, the market strengthens local pride and reinforces its role as a social and economic anchor for the village. In doing so, it demonstrates how modest means and contextually grounded design can transform everyday infrastructure into a catalyst for long-term resilience and shared prosperity.
-
Architect
Mariam Issoufou ArchitectsContractor
Entreprise Salou Alpha & FilsMetal Fabrication
Atelier de Technologie Métallique -
Archdaily - Dandaji Daily Market
Designboom - atelier masōmī uses colorful metal canopies to build dandaji market in niger
Dezeen - Colourful metal canopies shade a market in rural Niger by Atelier Masomi
Arquitecturaviva - Market in Dandaji
Detail - Colourful Shades in Niger: Dandaji Daily Market by Atelier Masomi